首 页
关于我们
客户案例
产品中心
公司活动
新闻动态
办公环境
客户服务
人力资源
联系我们
产品中心
家用电梯
乘客电梯
观光电梯
扶梯/人行道
医用电梯
载货电梯
杂物电梯
家用电梯
当前位置:
产品中心
> 家用电梯
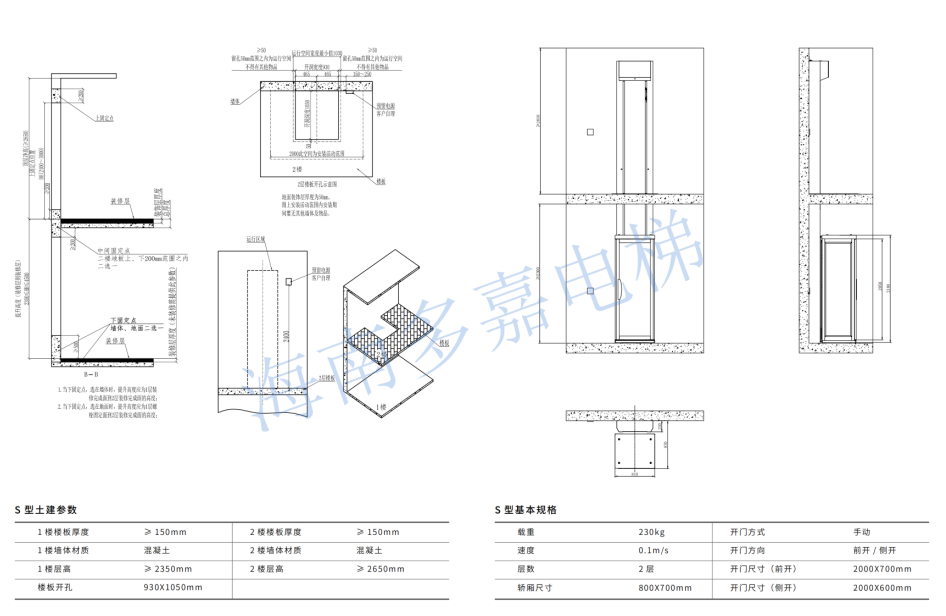
Caplift系列复试电梯
更新时间:2022/12/7 12:11:20
下一篇 :
没有了
公司名称: 海南多嘉电梯工程有限公司(西继迅达.家用电梯海口体验中心喜迎门店)
通讯地址: 海口市龙华区学院路与创美路交叉口喜盈门海口建材家具广场C区56号铺面
咨询电话: 0898-68554655、139 7665 9113、传真号码: 0898-68514655
邮箱: djdt@vip.126.com
联系人: 田先生
关注公众号
海南多嘉电梯工程有限公司
海南电梯
海口电梯
海南电梯公司
海口电梯公司
备案号:琼ICP备2023002514号